Progetto MECDOOR ANUBA

Linee per la lavorazione automatica delle porte 6-7 assi CNC

Video

Campo di lavoroMax
Lunghezza2500 mm
Larghezza1100 mm
Spessore80 mm
Caratteristiche standard modello MECDOOR ANUBA
Testa operatrice 3 assi CN (x-y-z) lato serrature
Fresatura sede serratura con N.2 elettromandrini orizzontali 3.3kw + N.1 elettromandrino verticale 2.2kw
Testa operatrice 4 assi CN (x-y-z- inclinazione) lato cerniere
Gruppo anubatura, completo di foratore, avvitatore e caricatore per cerniere anuba
Piano di lavoro Nr.2 nastri motorizzati h.950mm
Il lato serrature si auto-posiziona sulla larghezza del pannello in entrata
Nr.2 riferimenti di testa a scomparsa (destra / sinistra)
MECDOOR ANUBA - Optionals
Magazzino a vibrazioni per anuba (400 pezzi)
Gruppo fresatore con elettromandrino 3.3Kw per esecuzione sedi per cerniere a scomparsa
Gruppi fresatori (destra e sinistra) per lavorazioni tipo “pivot” sulle testate
Rulliera motorizzata in ingresso – dimensioni (mm) 2500x1000 h.950, completa di dispositivo per allineamento del pannello
Unità di carico automatico delle porte da catasta, con rotazione 180° delle porte per selezione battura destra / sinistra
Rulliera motorizzata in uscita
Condizionatore per armadio elettrico

Progetto MECDOOR ANUBA

Linee per lavorazione automatica delle porte.

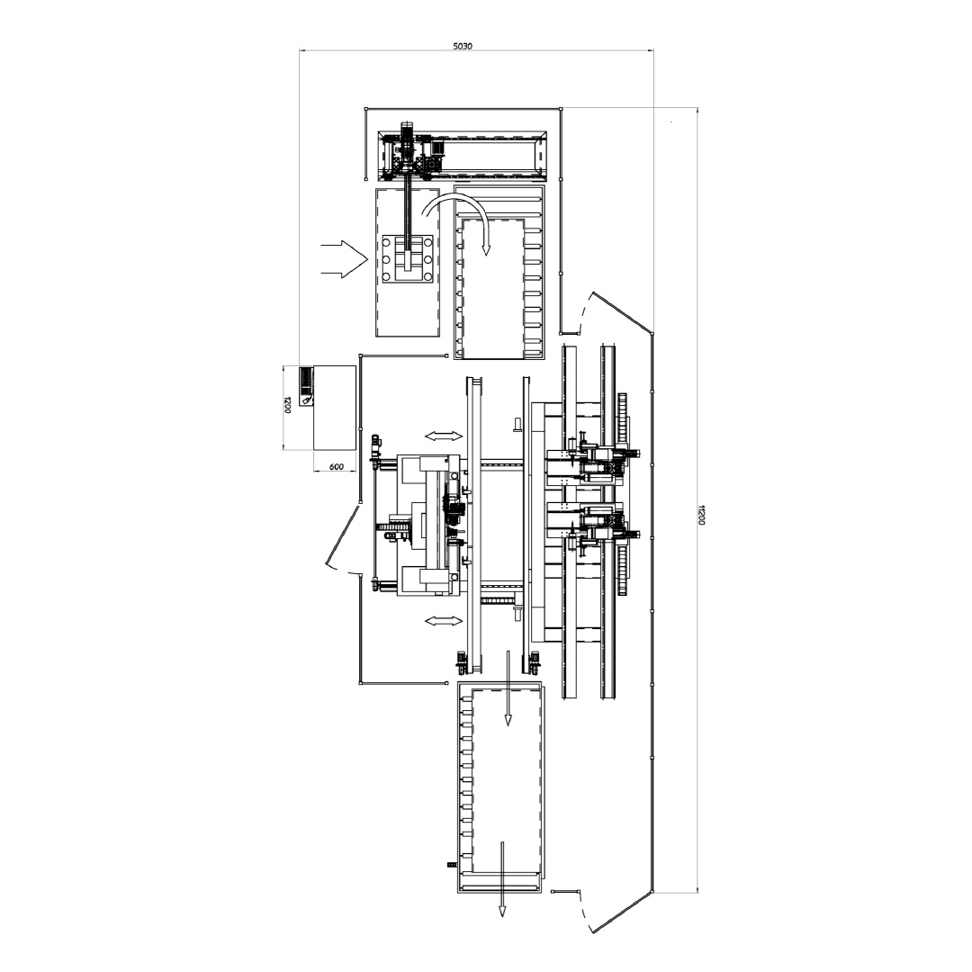
MECDOOR ANUBA è il centro di lavoro a doppia spalla con piani motorizzati a nastro per il trasporto dei pannelli. Conforme alla normativa CE ed abilitato ai benefici della Transizione 4.0.

Esegue con precisione sedi per serrature e contropiastre, oltre alle numerose tipologie di lavorazioni già comprese nel pacchetto base. Inoltre, nell’allestimento MECDOOR ANUBA, la macchina possiede tutte le funzionalità più avanzate per la posa delle cerniere anuba, quali programmazione ad interassi fissi o parametrici, passaggio in automatico tra quote “anta” e “telaio”, predisposizione per anuba a doppio gambo e molto altro.

La macchina lavora simultaneamente su entrambi i lati:

  • Sul lato mobile esegue la sede per serratura, adattandosi automaticamente alla larghezza del pannello.
  • Sul lato opposto, il gruppo anuba, fornito di serie, realizza l’inserimento delle anuba con diverse possibilità di personalizzazione, in base alle esigenze produttive.

L’impianto è disponibile in diverse configurazioni e può essere completato con rulliere di ingresso e uscita e con unità di carico/scarico automatico, per garantire massima efficienza e continuità operativa.

Il controllo numerico basato su sistema operativo Windows garantisce un’interfaccia semplice ed immediata, grazie all’utilizzo di macro parametriche facilmente editabili. Il centro di lavoro può essere interconnesso con la rete informatica aziendale.

MECDOOR è la soluzione ideale per chi cerca automazione e produttività.

Lavorazioni

  • Lavorazione serratura

    Cerniere a scomparsa

  • Lavorazione serratura

    Cerniere anuba

  • Lavorazione serratura

    sede per serratura pulita

  • Lavorazione serratura

    Serratura

Dimensioni

Loading...