Progetto MECDOOR HINGE

Linee per la lavorazione automatica delle porte 6-7 assi CNC

Video

Campo di lavoroMax
Lunghezza2500 mm
Larghezza1100 mm
Spessore80 mm
Caratteristiche standard modello MECDOOR HINGES
Testa operatrice 3 assi CN (x-y-z) lato serrature
Fresatura sede serratura con N.2 elettromandrini orizzontali 3.3kw + N.1 elettromandrino verticale 2.2kw
Testa operatrice 3 assi CN (x-y-z) lato cerniere
Lato cerniere: gruppo fresatore con elettromandrino 3.3Kw per esecuzione sedi per cerniere a scomparsa
Piano di lavoro Nr.2 nastri motorizzati h.950mm
Il lato serrature si auto-posiziona sulla larghezza del pannello in entrata
Nr.2 riferimenti di testa a scomparsa (destra / sinistra)
MECDOOR HINGES - Optionals
Gruppo n.2 mandrini 3.3kw on/off, per fresatura sedi cerniere con utensile di finitura per piastra
Gruppi fresatori (destra e sinistra) per lavorazioni tipo “pivot” sulle testate
Rulliera motorizzata in ingresso – dimensioni (mm) 2500x1000 h.950, completa di dispositivo per allineamento del pannello
Unità di carico automatico delle porte da catasta, con rotazione 180° delle porte per selezione battura destra / sinistra
Rulliera motorizzata in uscita
Condizionatore per armadio elettrico

Progetto MECDOOR HINGE

Linee per lavorazione automatica delle porte.

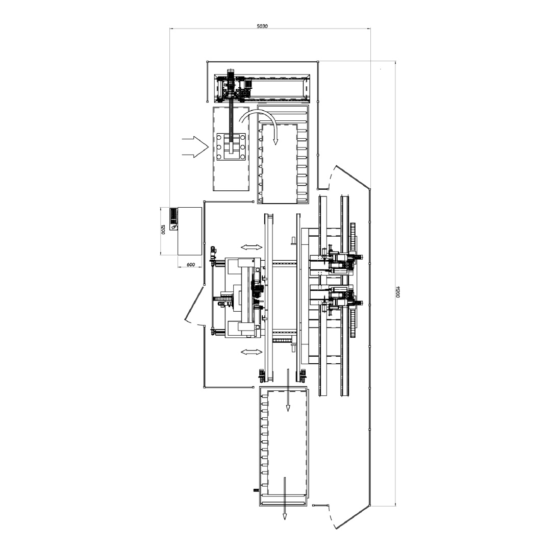
MECDOOR HINGE è il centro di lavoro a doppia spalla, con piani di lavoro a nastri motorizzati per il passaggio dei pannelli. conforme alla normativa CE ed abilitato ai benefici della Transizione 4.0.

Esegue con precisione sedi per serrature, contropiastre e cerniere a scomparsa, oltre alle numerose tipologie di lavorazioni già comprese nel pacchetto base.

La macchina lavora simultaneamente su entrambi i lati:

  • Sul lato mobile esegue la sede per serratura, adattandosi automaticamente alla larghezza del pannello.
  • Sul lato opposto, il gruppo hinge, fornito di serie, realizza sedi per cerniere a scomparsa.

La linea può essere configurata con gruppi specifici per lavorazioni su testate come intagli per porte scorrevoli, cerniere “pivot”, etc…
L’impianto può essere completato con rulliere di ingresso e uscita e con unità di carico/scarico automatico, per garantire massima efficienza e continuità operativa.

Il controllo numerico basato su sistema operativo Windows garantisce un’interfaccia semplice ed immediata, grazie all’utilizzo di macro parametriche facilmente editabili. Il centro di lavoro può essere interconnesso con la rete informatica aziendale.

MECDOOR è la soluzione ideale per chi cerca automazione e produttività.

Lavorazioni

  • Lavorazione serratura

    Cerniere a scomparsa

  • Lavorazione serratura

    Cerniere anuba

  • Lavorazione serratura

    sede per serratura pulita

  • Lavorazione serratura

    Serratura

Dimensioni

Loading...